







Casa en Pontevedra 01
autores: Tadeo Itzcovich
año: 2019
ubicación: Pontevedra, Merlo, Buenos Aires.
Este proyecto se desarrolla en un área que está en pleno proceso de transformación, para pasar de “zona rural” a “zona periurbana”. Es por ello que el contexto de la parcela, tal como se encuentra hoy en día, no ofrece evidencias ni históricas, ni físicas o materiales de la arquitectura de la ciudad y su desarrollo a lo largo del tiempo.
Frente a esta situación se abren oportunidades al tiempo que incertidumbres, ya que no es fácil pronosticar como se desarrollará el sitio en un futuro cercano, pues la zona todavía no cuenta con normativas claras, ni una estrategia de crecimiento o consolidación urbana a largo plazo.
Es por eso que proponemos un proyecto que no construya relaciones directas con el mundo exterior, sino una casa introvertida que establezca relaciones con las generosas dimensiones que la parcela tiene, pero que se aleje tanto de la calle como de sus vecinos.
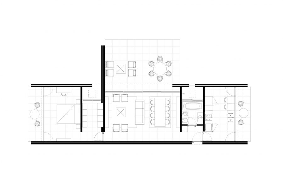
La casa organiza su programa de la siguiente forma. El acceso a la casa a través de un jardín de mediana escala orientado al sur. El estar y el comedor volcados sobre un jardín de gran escala orientado al norte, el dormitorio volcado a un jardín de pequeña escala orientado al oeste, la cocina volcada a un jardín de pequeña escala orientado al este; y el baño y el vestidor, orientados a patios de baja escala, relacionados a través de aberturas controladas con el mundo exterior